|
New Home to be Built
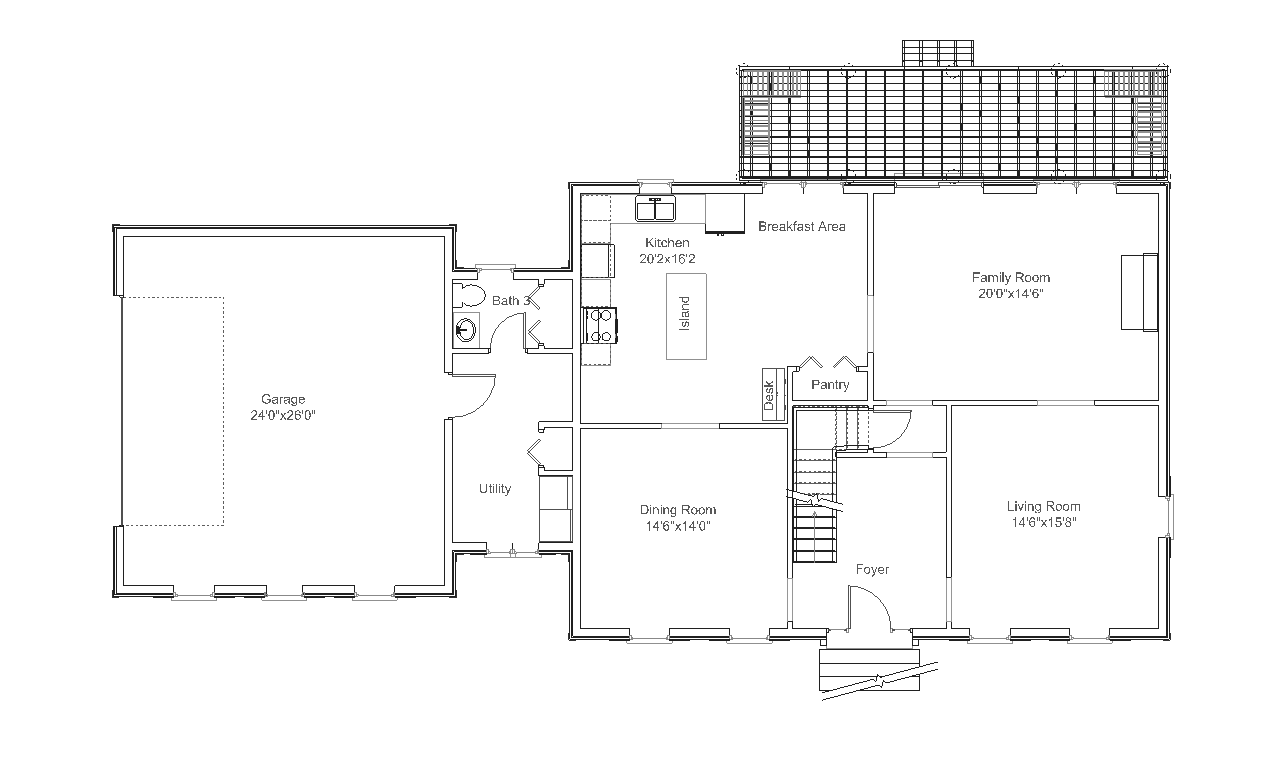
New 2,848 sf, Energy Star,
home to be build in (2)-lot subdivision located in the peaceful
surroundings of Westford. Open layout with large kitchen, 3 bedrooms, 2-1/2 baths
and two car garage, kitchen with island and built-in desk area. Property
located 15 minutes from Essex, IBM, Shopping, 25 minutes
from Burlington International Airport and 35 minutes to
downtown Burlington. Work with Jorschick Construction to put your finishing
touches to this great new home.
Lot Size:
5+ Acres
Starting At: $438,685

Realize Your Dreams
Peaceful Surroundings

First
Floor Plan
Second Floor Plan
Building Dreams While
Building Green |